
Zobacz, jak zrobić szafkę wiszącą krok po kroku. Proste porady i techniki, które zapewnią stabilność i estetykę Twojego wnętrza.

Zobacz, jak zrobić szafkę wiszącą krok po kroku. Proste porady i techniki, które zapewnią stabilność i estetykę Twojego wnętrza.

Dowiedz się, jak zagospodarować szafki w kuchni, by uniknąć bałaganu i zyskać więcej przestrzeni. Odkryj nowoczesne rozwiązania i praktyczne porady!

Skuteczne metody na to, czym zmyć klej z szafki bez uszkodzeń. Poznaj domowe i chemiczne sposoby, aby szybko usunąć klej bez ryzyka.

Znajdź idealne uchwyty do szarych mebli kuchennych, które podkreślą ich styl i funkcjonalność. Sprawdź nasze propozycje i stwórz harmonijną aranżację!

Zbuduj własny stół wibracyjny! Sprawdź, jak zrobić stół wibracyjny krok po kroku, z niezbędnymi materiałami i praktycznymi wskazówkami.

Zablokuj krzesło obrotowe, aby zwiększyć bezpieczeństwo i uniknąć wypadków. Sprawdź skuteczne metody i innowacyjne rozwiązania, które zapewnią stabilność.

Wybierz idealny obrus na okrągły stół! Sprawdź, jak dobrać odpowiedni rozmiar i styl, aby stworzyć harmonijną aranżację wnętrza.

Szukasz, co dać między szafki kuchenne? Sprawdź najlepsze materiały i praktyczne porady, które podkreślą styl i funkcjonalność Twojej kuchni.

Skutecznie zamaskuj dziurę w szafce i przywróć jej estetykę dzięki prostym metodom naprawy i kreatywnym rozwiązaniom.

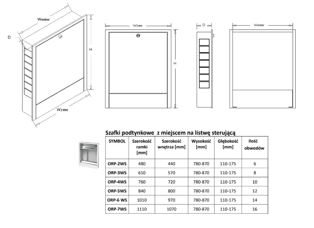
Poznaj wymiary szafki rozdzielacza CO i sprawdź, jak dobrać odpowiedni model do swoich potrzeb. Wybierz najlepsze rozwiązanie dla swojego systemu grzewczego!